ABL系列红外电子光墙使用说明书
2020.10.16
一、概述
室内外两用型多光束主动红外电子光墙是现代高科技产品,本产品具有安装调试简单、方便、外型美观等特点;适用于机关、学校、别墅、工厂、公园、小区、度假村、博物馆等需要防范盗贼进入的地方,起到入侵防范报警作用,能有效保证您的安全,避免财产损失。
二、产品特性
采用数字变频与CPU微处理数码控制技术,整体稳定性更好,可靠性更高,抗干扰能力更强;
底盘采用厚达4MM的钢板一体冲压成型,精度好,硬度高;
支撑柱采用厚达5MM的高强度铝型材,运用经典的铁三角设计,确保受力面面俱到,可以抵抗12级以上台风;
PC管采用德国进口工程PC材料制作,厚度达1.8MM,抗压、抗冲击能力强,红外光透过率大于95%,可见光透过率小于2%;
两段频率可选,彻底解决相邻红外干扰;
双束识别功能能有效地防止小动物、飞鸟等引起误报;
封闭式外接线结构设计,创新性地吸取“瓶盖”倒置设计灵感在保留外接线的同时将红外光栅的防水性能提升到了新的的高度;
灵敏度高、防范警戒距离三档可调;
具有防风、霜、雨、雪、雾、潮、太阳光斜照等特点。
三、技术参数
光束数量:4/6/8/10光束
警戒距离:10/30/100米
电源电压:DC 12~18V
消耗电流:50~120mA
环境温度:一30℃~+70℃
报警输出:常开常闭可选(出厂默认常闭),接点容量30V 2A
反应速度:≤40ms
报警持续时间:≥1s
报警输出:常开常闭可选(出厂默认常闭),接点容量30V 2A
反应速度:≤40ms
报警持续时间:≥1s
四、产品结构
1、光墙整体结构安装及顺序


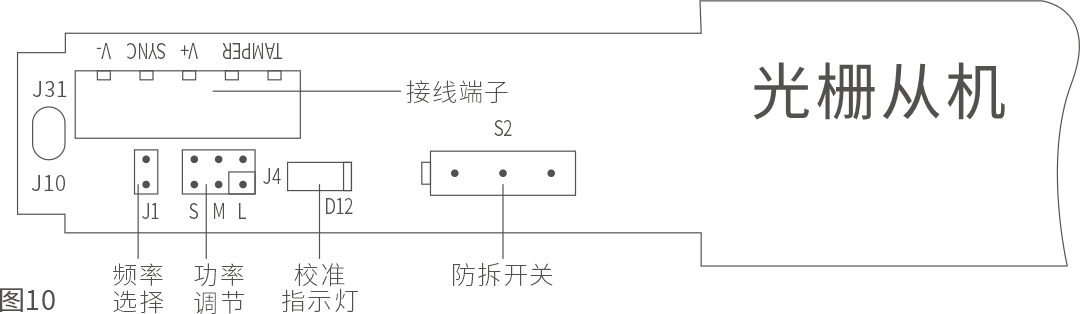
2、光栅部分

五、安装说明
1、安装底座
1.1、按图3所示固定孔的尺寸将四颗∮10螺丝预先埋置在水泥基座内,且高出基座面2厘米(图4),并在水泥基座上预留好出线孔,一对光墙的两个水泥基座要在同一水平面上,水泥基座安装要平稳,手推不晃动。

1.2、光墙底座与水泥基座平贴(如果铝型材骨架还不垂直,可在底座垫上垫片至铝型材骨架垂直)。
1.3、走线管管口与水泥基座平齐,注意高压线不能和低压线、信号线布在同一走线管内。
1.4、安装箭头方向与防范边界垂直,如果有转角位置安装的,箭头方向要朝两侧防范边界组成的小角度的方向。
2、安装红外光栅
2.1、安装前,如需对光栅的报警输出状态或报警模式等进行设置,请先确保光栅断电,打开主机管塞(左右轻轻摇动管塞后更易打开),拉出主机主板,进行设置(请勿过份用力,以防电路板折断)。完成后,再将主板推回铝合金管中并将管套的卡槽插到管塞中(图5)。

2.2、用手抓住管塞上盖向后拉打开上盖(图6)。

2.3、将红外光栅的上、下固定孔位用螺丝拧紧在铝型材骨架的安装槽内;注意拧入力度不能太大,以免螺丝滑牙,安装时红外光栅有接线端的一端在下方,另一端在上方,不能上下颠倒安装(尽可能离底盘高些,以避开雨水浸入),同一对光栅的主机和从机之间不能有障碍物遮挡,光栅主机和从机之间不能有很明显的水平高度差。
2.4、抓住防水胶塞向外拉,打开防水胶塞(图7);

2.5、逆时针旋转拧开密封盖(图8);

2.6、用螺丝刀等工具插入电路板的推拉孔,轻轻往外拉出电路板,即可对光栅进行功能设置(图9);

2.7、功能设置




如果是双发双收则必须把两根光栅主机放一根管子里或两根从机放一根管子里并且把其中一根设置为A频,另一根设置为B频,不能把一根主机和一根从机放在同一根管子里。
2.8、穿线方式

2.9、接线方法
单电源供电,同步工作方式接线示意图

双电源供电,同步工作方式接线示意图

六、红外光栅校准与调试
1、目测调整红外光栅的主机和从机对准,通电,左右慢慢的旋转光栅主机,当校准指示灯全部熄灭光栅主机的蜂鸣器不响说明光栅已对准,但是一般情况下把光栅主机慢慢左旋转到刚好报警的位置(左临界方向),然后再慢慢地把光栅主机右旋转到刚好报警的位置(右临界方向),最后把光栅调到这两个位置的夹角平分线的位置(最佳接收方向)(图14)。

2、拧紧红外光栅上/下管塞的转向锁定螺丝,再拧密封盖拧紧。
3、检查红外光栅功能是否正常,遮挡红外光栅,红外光栅的主机蜂鸣器响,校准指示灯亮,继电器输入由常闭变为常开(图15)。

4、确认红外光栅的主机和从机的上下固定座的转向锁定螺丝、高度定位螺丝已拧紧、防护盖已盖牢;慢慢套上PC管,注意不要碰到内部红外光栅。
5、再次检查红外光栅功能是否正常。
备注:在一些大型应用场所,为了更快速准确的进行产品安装,建议使用水准仪进行水平定位。
七、常见故障分析及排除
1、主机与从机校准LED常亮且蜂鸣器常响(处于报警状态)
A、检查主机和从机的频率是否同时为A频或B频工作模式
B、检查从机电源是否正常,如采用同步方式工作,检查同步线是否接触良好
C、重新拔插防拆开关的调试跳线帽J5和J10的“J3”
D、检查主机与从机是否超出了光栅的最大防范距离,功率是否调得太小
E、检查主机与从机之间是否有遮挡物
F、重新插拔功率调节跳针
G、线路板上安装的透镜支架是否松动或损坏
2、主机校准LED闪亮、从机校准LED不亮且主机蜂鸣器断断续续短响(处于预警状态没有真正报警)
A、检查从机的电源是否正常
B、可用手逐一遮挡从机的接收器,当蜂鸣器常响时则可判断其相邻的光束接收不正常或用手机摄像头观察从机是否有某些光束不发光
3、从机校准LED常亮、主机校准LED闪亮且主机蜂鸣器断断续续短响(处于预警状态:没有真正报警)
A、检查主机的电源是否正常
B、可用手逐一遮挡主机的接收器,当蜂鸣器常响时则可判断其相邻的光束接收不正常或用手机摄像头观看主机是否有某些光束不发光
4、遮挡光栅时,光栅灵敏度低或很难触发报警
A、检查是否已遮挡相邻两光束
B、红外信号经墙体、地面或其它物体反射后重新照射到对应的光栅上,导致很难触发报警
C、建议把发射功率减小(主机和从机发射功率大小必须调节一致)
5、报警输出信号不正常
A、检查光栅主机蜂鸣器是否是常响,若是常响,则按故障1方法排查,若不是,且只有遮挡时才常响,说明光栅能正常接收,则按以下步骤检查
B、用万能表的通断档测试光栅主机继电器输出端,在遮挡时和不遮档时是否有动作切换,如无切换则是继电器的输出有问题,否则则进行下一步检查
C、检查光栅信号输出口ALARM与报警主机之间线路是否连接正确,是否有断路或短路现象
D、报警信号线与报警主机的末端电阻是否连接正确
E、光栅与报警主机之间的距离过长线阻过大,请改用阻值合适的末端电阻。

